Orchestra Shell Information
The Orchestra Shell is a portable enclosure designed to project orchestral of choral sound toward the audience. The shell is erected and struck for shows which require its use. Shell configurations are as follows:
Click on arrangments below for photo example
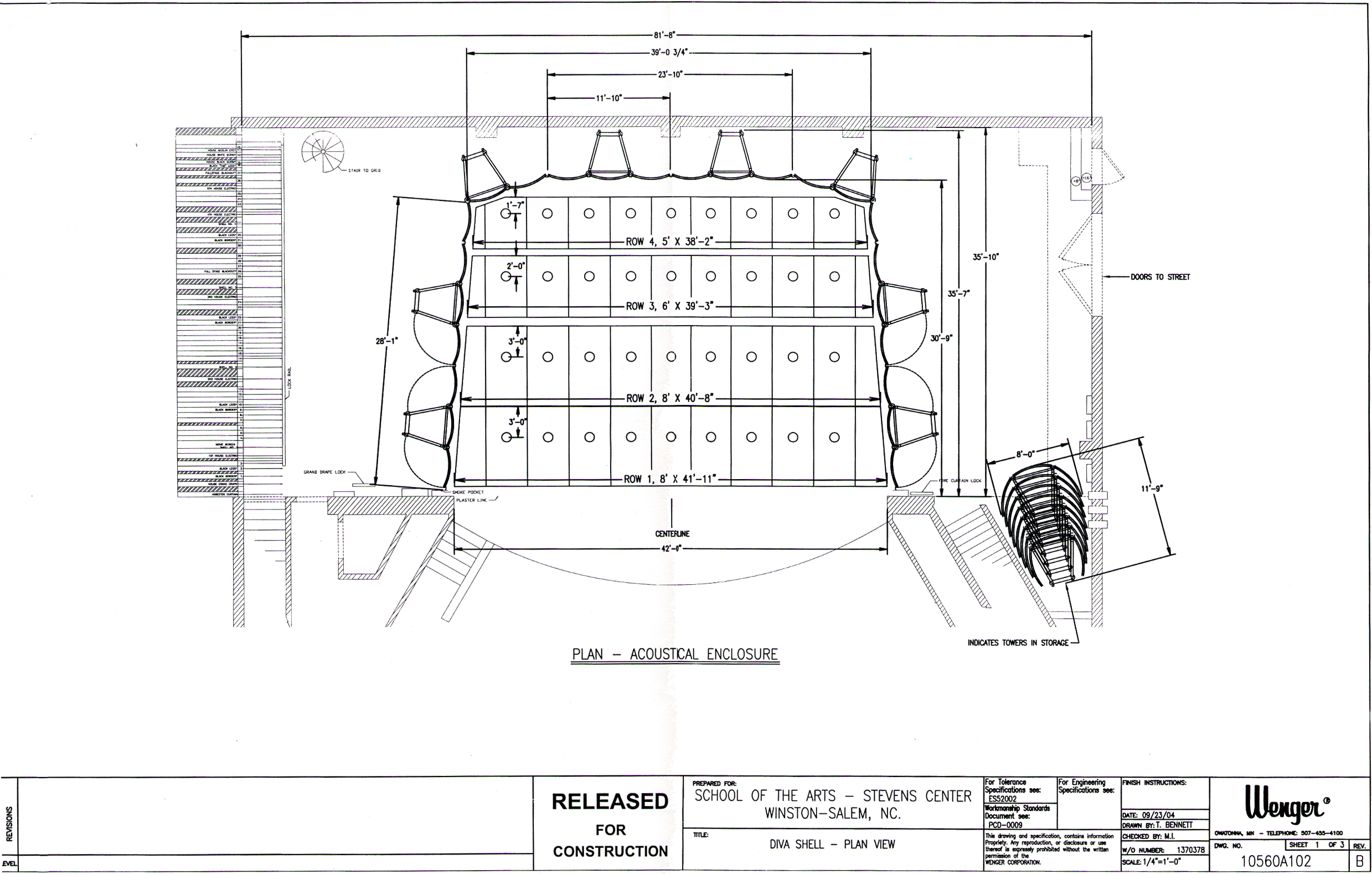
A full shell is 42’ wide at the downstage wall, 30’ deep from the plaster line and consists of eight movable towers with four ceiling clouds. The ceiling clouds are permanently hung on battens, and are flipped down to a horizontal position when in use. When orchestra shell is in place, linesets can not be used.
The shell also may be at alternate depths of 24’ from the plaster line (ensemble position) or at 18’ from the plaster line (solo and piano position).
The downstage edges (ends) of the shell are continuous with the sides of the proscenium, and the doors in the downstage towers allow entrance and exit to and from the stage.
Orchestra Equipment Inventory:
- 200 black upholstered chairs
- 100 black music stands without lights
- Small number of assorted height stools
- 1- 9’ Steinway Grand Piano
- 1- Kawai upright Piano
- 1- 2’-6" square by 8" high conductor’s podium
- 1- 3’-0" square by 8" high conductor’s podium
- Percussion equipment available upon request. A rental fee is charged.
Orchestra Pit/Lift
The orchestra pit is Bayreuth style and with the gate open, it will accommodate approximately 60 musicians. With the gate closed (when lift is above pit level), it will accommodate approximately 35 musicians.
There are four preset levels for the lift: storage, pit, house, and stage. The lift may be stopped anywhere in between these levels.
Orchestra Shell Drafting Scans
The final construction for the orchestra shell may be of use to some so we have made the most important information available below.
The draftings selected will provide the plate index, plan view, and section.
If you would like any other information please refer to Page 1 for drafting plates available. Please do not hesitate to contact us with your requests.


