Center Stage Apartments
The Center Stage Apartments were built in 2001 and are located adjacent to the campus. Apartment areas do not close during the holiday and Spring Break periods. Populations generally residing in apartment areas include upper-class students, non-traditional aged students and international students.
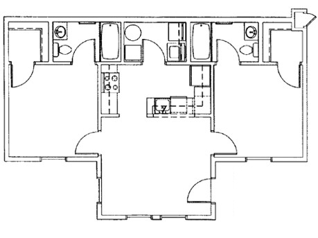
Floor Plan

Dimensions (not including vanity areas):
Bedrooms: 11' 2" x 11' 10"
Living room: 13' 8" x 12' 5"
Apartment Features
- Two single bedroom suites in each apartment
- Each apartment has major appliances (i.e. microwave, dishwasher, etc)
- Washer and dryer in each apartment
- Full-time maintenance staff
- Utilities included
- Ethernet connection
- Security alarm system
- Each student’s room has: a standard full bed (standard twin beds in Quad Apartments), desk, dresser and walk-in closet space
- Apartments are air-conditioned and carpeted
