Artist Village

Artist Village

Artist Village opened in January 2022. It provides suite-style housing for approximately 450 students, offering two double or single rooms and a suite-shared bathroom space. It features multiple gaming areas, community lounges, community kitchens on the first and fifth floors, studies on each floor and a central laundry facility on the first floor.

Amenities

Floor Plans for Artist Village

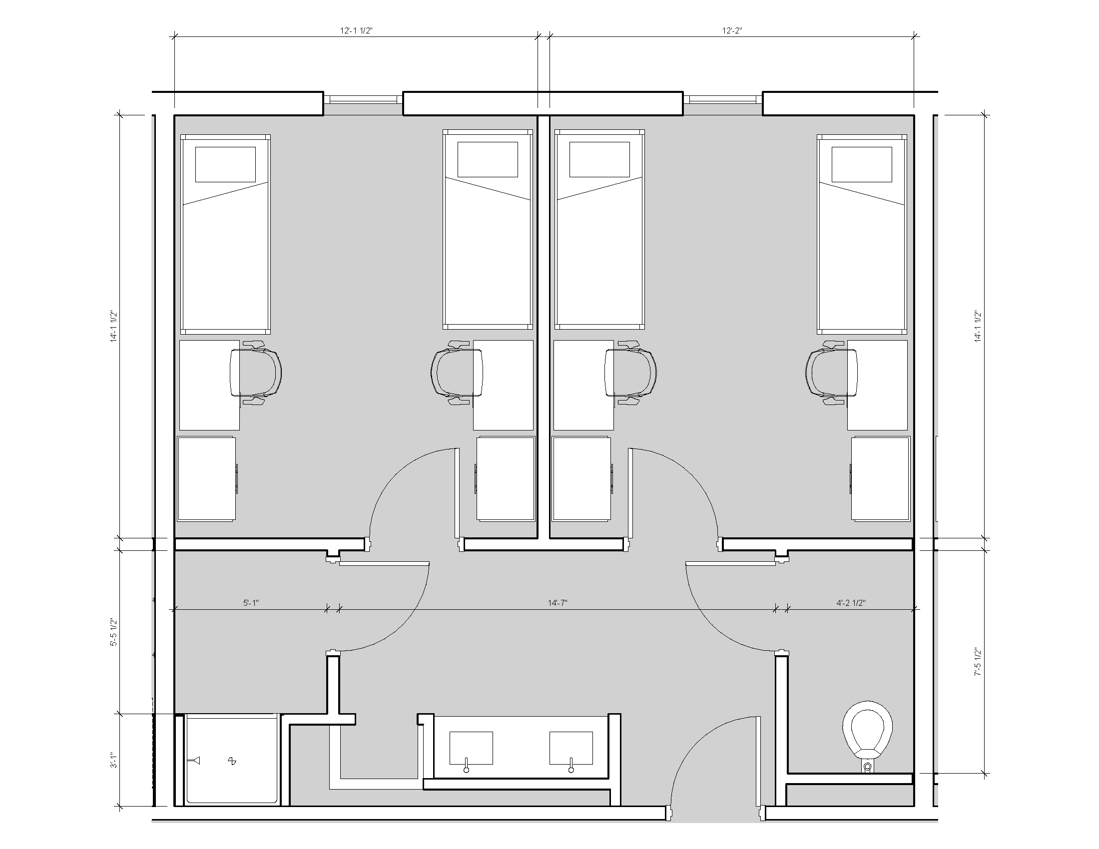
Double suite

Double suite for New Residence Hall

Single suite

Single suite in New Residence Hall

Take a peek inside

Furniture dimensions

Approximate dimensions — may vary slightly depending on room:

  • Underneath bed: 31"H x 38"W x 80"L
  • Desk: 28"H x 30"W x 23.5"L
  • Nightstand/side table: 29"H x 16.25"W x 23.75"L
  • Wardrobe (including bottom drawers and stands): 72"H x 23.25"L x 35.5"W

Frequently Asked Questions

Q: What size beds are in Artist Village?
A: All beds will be XL twin-size beds.

Q: Can beds be lofted?
A: No, beds cannot be lofted in Artist Village.

Q: What types of rooms are available in Artist Village?
A: Artist Village offers:

  • Two-person suites (2 one-person bedrooms); and
  • Four -person suites (2 two-person bedrooms)

Q: Is there be a quiet wing in Artist Village?
A: Yes.

Q: Does Artist Village have laundry facilities?
A: There will be two laundry facilities in Artist Village. 

Q. Do I need to supply my own toiletries for my room? Am I responsible for purchasing my own toilet paper, cleaning supplies and for cleaning my own bathroom?
A: Students must supply their own toiletries for their suites and are responsible for cleaning their suite restroom areas.